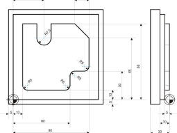
Aller Anfang ist leicht Sinnvolle Bemaßung Zyklen folgen später
  Galerie schließen