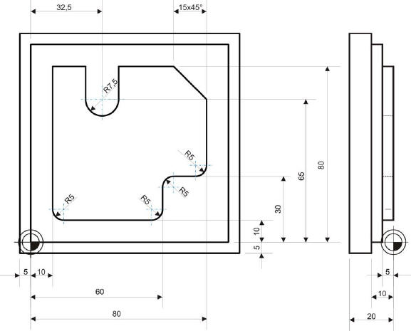
Sinnvolle Bemaßung - Ausgehend vom Nullpunkt werden Werkstücke nach Möglichkeit so bemaßt, dass CNC-Programme rasch erstellt werden können. (2/3)
Zurück Übersicht Weiter